$698,000
934
SQ FT
$747
SQ/FT
3620 Ivalynn Circle
@ Piedmont Rd - 5 - Berryessa, San Jose
- 2 Bed
- 2 Bath
- 2 Park
- 934 sqft
- SAN JOSE
-
-
Sat Jan 17, 1:00 pm - 4:00 pm
-
Sun Jan 18, 1:00 pm - 4:00 pm
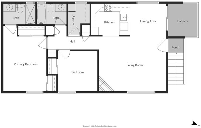
Bringing affordability back to Silicon Valley! Welcome to this charming freshly painted 2-bedroom, 2-bathroom North facing home nestled in vibrant Berryessa. This home is served by Piedmont High and Noble elementary (buyers to verify) . Enter into an open living and dining space streaming with light and overlooking the community greenspace. The kitchen with new countertops and natural wood cabinets connects to the dining area making it easy to chat and cook. The porch is in the front of the home, perfect for a morning cup of coffee or a family bbq. The primary bedroom is in the back of the home overlooking the interior of the community adding light and privacy. This unit comes with a TWO car side by side garage directly under the home. .Additional amenities including in unit laundry, making chores a breeze. Within walking distance to the library and market, Piedmont Highschool, as well as many local parks. Minutes to shopping and the Great Mall. This home is close to both the 680, 237 and 880 freeways giving flexibility in commute, and close to many Tech employers such as Tesla and Cisco, and Apple.
- Days on Market
- 2 days
- Current Status
- Active
- Original Price
- $698,000
- List Price
- $698,000
- On Market Date
- Jan 13, 2026
- Property Type
- Condominium
- Area
- 5 - Berryessa
- Zip Code
- 95132
- MLS ID
- ML82029331
- APN
- 595-37-073
- Year Built
- 1986
- Stories in Building
- 1
- Possession
- Unavailable
- Data Source
- MLSL
- Origin MLS System
- MLSListings, Inc.
Berryessa Union Elementary School
Public K-8 Alternative
Students: 1 Distance: 0.2mi
Piedmont Hills High School
Public 9-12 Secondary
Students: 2058 Distance: 0.2mi
St. Victor School
Private K-8 Elementary, Religious, Nonprofit
Students: 240 Distance: 0.4mi
Ruskin Elementary School
Public K-5 Elementary
Students: 568 Distance: 0.5mi
Sierramont Middle School
Public 6-8 Middle
Students: 930 Distance: 0.5mi
Noble Elementary School
Public K-5 Elementary
Students: 456 Distance: 0.5mi
- Bed
- 2
- Bath
- 2
- Parking
- 2
- Attached Garage
- SQ FT
- 934
- SQ FT Source
- Unavailable
- Pool Info
- Other
- Cooling
- Central AC
- Dining Room
- Breakfast Bar
- Disclosures
- NHDS Report
- Family Room
- No Family Room
- Foundation
- Concrete Slab
- Fire Place
- Family Room
- Heating
- Central Forced Air
- * Fee
- $465
- Name
- Piedmont Manor HOA
- Phone
- 408-871-9500
- *Fee includes
- Decks, Garbage, Landscaping / Gardening, Sewer, and Water / Sewer
MLS and other Information regarding properties for sale as shown in Theo have been obtained from various sources such as sellers, public records, agents and other third parties. This information may relate to the condition of the property, permitted or unpermitted uses, zoning, square footage, lot size/acreage or other matters affecting value or desirability. Unless otherwise indicated in writing, neither brokers, agents nor Theo have verified, or will verify, such information. If any such information is important to buyer in determining whether to buy, the price to pay or intended use of the property, buyer is urged to conduct their own investigation with qualified professionals, satisfy themselves with respect to that information, and to rely solely on the results of that investigation.
School data provided by GreatSchools. School service boundaries are intended to be used as reference only. To verify enrollment eligibility for a property, contact the school directly.




















